847 Asylum Avenue

847 Asylum Avenue, also known as the Linus Plimpton House, counts as one of NINA’s largest projects. It stands as one of Asylum Hill’s – and Hartford’s – most distinctive homes, and it showcases a vibrant, revitalizing neighborhood. Built ca. 1862 and then substantially expanded 1884-1885, it was very nearly 70 years home to the Plimpton family. NINA acquired the house from the South Park Inn in 2021, and we restored it as an owner-occupied three-family.

Before & After

The exterior didn't really change, so I went with a change in the seasons.

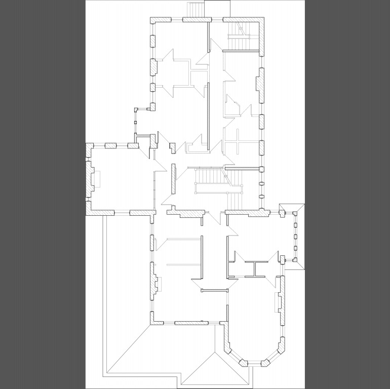
1st Floor

Red dots are before photos, and yellow dots are after photos. Dots represent approximate location of photographer. Use slider to see before and after floor plans: slide to right to see before, and slide to left to see after.
Move your mouse over a red or yellow circle to see a photo.

2nd Floor

Move your mouse over a red or yellow circle to see a photo.

3rd Floor

Move your mouse over a red or yellow circle to see a photo.

Topics

Some additional information about the house.


Project History

CT Insider published an article on 847 Asylum Avenue

1/10/2025

CT Insider ran an article online about the Plimpton House today.  It covers a lot of information that we have, but it also included some references that we hadn’t previously found – which is to say,

Support For This Project
Our partners on this project: